[started June 2011, finished January 2012] the house plan/bid has been the longest and most frustrating part of the process. Fortunately, at this point we have completed that stage, but I will give a little explanation for the process we went through.
After we purchased the land, we casually searched the internet for house plans that we liked. The most important part was finding an exterior that we liked, because the interior could be rearranged to what we wanted. We came across an exterior that we both liked and an interior that could be changed minimally to what we wanted. The requirements were:
- ranch style
- potential for bonus room above garage [we ended up taking this out of the final plans. we decided to finish the basement instead]
- at least 3 bedrooms on the main level
- master bedroom with bathroom and 2 walk in closets
- half bath for guests off of living area
- full bathroom for 2 bedrooms
- master bedroom separated from other 2 bedrooms
- mudroom
- walk in pantry
- open floor plan
- fireplace
- 3 car garage
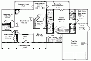
The plan i found [familyhomeplans.com]:

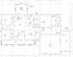
My drawing for the interior:
*I also had a plan for the basement as well, the final image is very similar
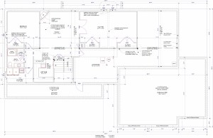
The final plan (after several iterations):
So I said it was a difficult process, right? Well, we met with the architect that worked for one of the local lumber companies. we gave him all of the details and within about 2 weeks we met with him to go over the initial plans. Everything was pretty good, but there were a few things to change. However, about a week or so later we found out that the lumber company went out of business. just closed their doors. So.. how were we going to get in contact with the architect? After a few weeks, he called us and he told us that he was going to continue to work on house plans from his home. Months went by and because we were not building soon, we were not a priority. Finally, in December, we received the revisions. We had a few small changes and in January they were complete. This was the start of another round of discouraging events…





